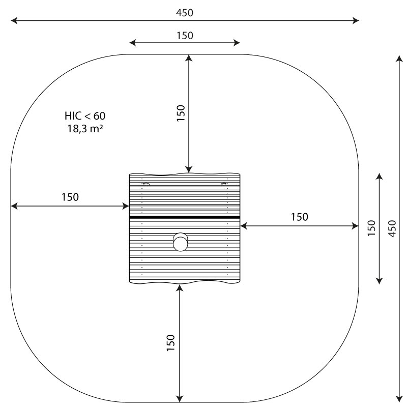
ROBINIA RB1201
ROBINIA RB1201
ROBINIA RB1201
ROBINIA RB1201
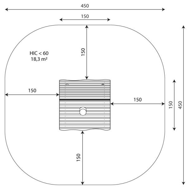
Preview: ROBINIA RB1201
Preview: ROBINIA RB1201
Preview: ROBINIA RB1201
Preview: ROBINIA RB1201